Recent toegevoegd of aangepast
Vergeten Oostendse schilders : VII - Emile Bulcke (1875-1963) : aflevering 1
Trefwoorden
BULCKE EMILE (1875-1963) (KUNSTSCHILDER BEELDHOUWER)KUNSTSCHILDERS
Auteurs:
Hostyn Norbert
Nog een woordje over de Oostendse brouwerijen
Trefwoorden
NIJVERHEID ; BIERBROUWERIJENBROUWERIJ DEMEUNINCKBRASSERIE FEYS (BIERBROUWERIJ BIERHANDEL)
Auteurs:
Standaert Ronny
Een Oostends literair document bewaard te Parijs
Trefwoorden
BOEKBESPREKINGEN ZIE OOK OP TITELLITERATUUR
Auteurs:
Smissaert Emile
Het begin van het Belgisch verzet tegen de Franse Revolutie, ook te Oostende
Trefwoorden
GESCHIEDENIS ; FRANSE TIJD
Auteurs:
Smissaert Emile
Iets over A. Vierendeel, ontwerper van het type brug die over de ''Demey-sluizen'' ligt
Trefwoorden
DEMEYBRUGVIERENDEEL ARTHUR (1852-1940)HAVEN ; BRUGGEN
Auteurs:
Smissaert Emile
Orgels in groot-Oostende : Het orgel van de Sint-Jozefskerk : periode 1910-1920
Trefwoorden
KERKORGELSKERKELIJKE GEBOUWENSINT-JOZEFSKERK (PAROCHIEKERK)
Auteurs:
Hostyn Robert
Bouwmeesters van Oostende-Belle-Epoque : XVIII - Maquet, Girault en Marcel, 3 ''vorstelijke'' architecten
Trefwoorden
ARCHITECTENARCHITECTUUR ; BELLE EPOQUEMAQUET HENRI (1839-1909) (ARCHITECT)GIRAULT CHARLES (1851-1932) (ARCHITECT)MARCEL ALEXANDRE (1860-1928) (ARCHITECT)VENETIAANSE GAANDERIJENKONINKLIJKE GAANDERIJENWELLINGTONRENBAAN
Auteurs:
Hostyn Norbert
Oostends oesterboek
Trefwoorden
OESTERKWEEKHOSTYN NORBERT (CONSERVATOR)BOEKBESPREKINGEN ZIE OOK OP TITELHALEWYCK RAOUL
Auteurs:
Dreesen Jean Baptist
Historiek van de eerste gebouwen langs de Oostendse zeedijk (1830-1876). - Bijzonder jubileumnummer van ''De Plate'' uitgegeven ter gelegenheid van haar 25-jarig bestaan 1954-1979. - Met foto's en afbeeldingen
Trefwoorden
HOTELS (OUDE)ZEEDIJKTOERISME ; HOTELSCASINO-KURSAAL ; GESCHIEDENISTOERISME ; GESCHIEDENISHOTEL DE LA PLAGECERCLE DU PHARE (GEBOUW)PAVILLON MUSINPAVILLON DES DUNESOESTERPUT VAN LOO-BERNIERPAVILLON DU RHIN (HOTEL RESTAURANT)PAVILLON DES BAINSPAVILLON NATIONAL (HOTEL)HOTEL DE L'OCEANHOTEL BEERBLOCKCASINO-KURSAAL (1852)OOSTENDE ; 19E EEUW
Auteurs:
Farasyn Daniel
Een aanvulling op ''Oostende in de Franse Tijd''
Trefwoorden
GESCHIEDENIS ; FRANSE TIJD
Auteurs:
François Luc
Errata bij de ''Historiek van de eerste gebouwen langs de Oostendse zeedijk''
Trefwoorden
Auteurs:
Farasyn Daniel
Vergeten Oostendse schilders : VI - Daniël Pieters en Camille De Bruyne
Trefwoorden
KUNSTSCHILDERSPIETERS DANIËL (KUNSTSCHILDER)DE BRUYNE CAMILLE (KUNSTSCHILDER)
Auteurs:
Hostyn Norbert
Toen Streuvels in Mariakerke ''Het hutje bij de zee'' zong
Trefwoorden
STREUVELS STIJN (AUTEUR)
Auteurs:
Gheeraert John
Vergeten Oostendse schilders : V - Euprhosine Beernaert : aflevering 2
Trefwoorden
KUNSTSCHILDERSBEERNAERT EUPHROSINE (1831-1901) (KUNSTSCHILDERES)
Auteurs:
Hostyn Norbert
De overstromingen in de streek van Oostende in de 17e en 18e eeuw
Trefwoorden
OVERSTROMINGEN ; ALGEMEEN
Auteurs:
Smissaert Emile
Oostends driekoningenfeest
Trefwoorden
DRIEKONINGENVIERINGFOLKLOREFEESTEN
Auteurs:
Van Iseghem August
Zanten uit Bredene : Pasen, eieren rapen ; 1e april, verzendertjesdag ; 2e april, sluitertjesdag ; Grappen en plagerijen
Trefwoorden
VOLKSKUNDE
Auteurs:
Clybouw Karel
Vader. - Uit : Yang, nr. 84, september 1978, p. 128
Trefwoorden
POEZIEVADER (GEDICHT)
Auteurs:
Devriendt Roger
Congonutjes
Trefwoorden
VOLKSFIGURENKROMME LÉON (CLAEYS)GEPEKELDE FIEGE (CAFE)CAFESWIJKEN EN STRATEN ; VISSERSKWARTIER
Auteurs:
Dreesen Jean Baptist
Kind van de zee. - Uit : Avondrood (1976)
Trefwoorden
POEZIEKIND VAN DE ZEE (GEDICHT)
Auteurs:
Cornelis Frans
Oostendse liederenschat : Den grootsten Boot op d'helling
Trefwoorden
VOLKSMUZIEKDEN GROOTSTEN BOOT OP D'HELLING (LIED)
Auteurs:
Van Wulpen Jan
Driekoningenfeest... een teloorgegane stadstraditie
Trefwoorden
DRIEKONINGENVIERINGFEESTENFOLKLORE
Auteurs:
Farasyn Daniel
,
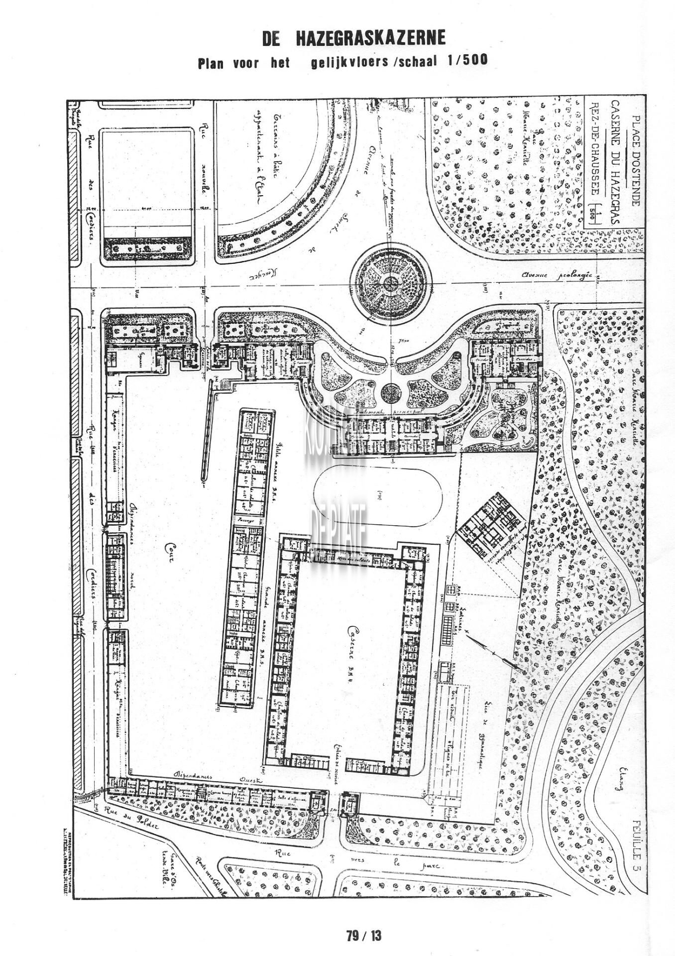
De Hazegraskazerne. - Met 2 plannen
Trefwoorden
MILITAIRE GEBOUWENMILITAIRE BOUWWERKEN ; KAZERNES ; HAZEGRASKAZERNEWIJKEN EN STRATEN ; HAZEGRAS
Auteurs:
Menu Filip
Indrukken over en berichten uit het Oostendse garnizoensleven anno 1769
Trefwoorden
MILITAIRE GESCHIEDENIS
Auteurs:
Farasyn Daniel
Zandvoorde
Trefwoorden
BOEKBESPREKINGEN ZIE OOK OP TITELWIJKEN EN STRATEN ; ZANDVOORDE
Auteurs:
Vilain Omer
Een essay gewijd aan Daan Boens
Trefwoorden
BOENS DAAN (1893-1977) (POLITICUS LETTERKUNDIGE)
Auteurs:
Smissaert Emile
Oostends fait-divers, met commentaar à la Marnix Gijsen
Trefwoorden
BOEKBESPREKINGEN ZIE OOK OP TITELGIJSEN MARNIX (1899-1984) (AUTEUR)OOSTENDE IN DE LITERATUUR
Auteurs:
Smissaert Emile
Jaarboek Ter Cuere
Trefwoorden
HEEMKUNDIGE KRING TER CUERE ; JAARBOEKEN
Auteurs:
Dreesen Jean Baptist
,
Het jaar van het dorp : Het Westvlaamse landschap. - Met 2 foto's
Trefwoorden
LANDSCHAPLANDSCHAPSZORG
Auteurs:
Geldhof P.
Oostendse liederenschat : Kluchtlied : De Cirk
Trefwoorden
VOLKSMUZIEKDE CIRK (LIED)
Auteurs:
Van Wulpen Jan
Oostendse liederenschat : Het ellendig, kluchtig leven en verdriet van den Kleinen Witten Deugniet
Trefwoorden
VOLKSMUZIEKKLEINEN WITTEN DEUGNIET (LIED)
Auteurs:
Van Wulpen Jan
Oostende in de Franse Tijd
Trefwoorden
GESCHIEDENIS ; FRANSE TIJDHAVENGEUL
Auteurs:
Dreesen Jean Baptist
Bij het graf van James Ensor. - Uit : Deltaland, Heideland-Orbis, 1973, p. 55-56
Trefwoorden
ENSOR IN DE LITERATUURBIJ HET GRAF VAN JAMES ENSOR (GEDICHT)OOSTENDE IN DE POEZIE
Auteurs:
Vercnocke Ferdinand
Oostende. - Uit : De Blauwe Wimpel, jrg. 33, nr. 2, februari 1978
Trefwoorden
NOORDEGRAAF JAN (AUTEUR)OOSTENDE IN DE POEZIEOOSTENDE (GEDICHT)
Auteurs:
Noordegraaf JanDreesen Jean Baptist
Petitie ''Redt uw bosje''
Trefwoorden
PARKEN ; MARIA-HENDRIKAPARKLANDSCHAPSZORG
Auteurs:
Vilain Omer
Industriële archeologie
Trefwoorden
BOEKBESPREKINGEN ZIE OOK OP TITELINDUSTRIËLE ARCHEOLOGIE
Auteurs:
Vilain Omer
Wat de literaire kritiek schrijft over de Oostendse dichter Roger Devriendt
Trefwoorden
DEVRIENDT ROGER (AUTEUR)
Auteurs:
Smissaert Emile
Boeken : West-Vlaanderen
Trefwoorden
BOEKBESPREKINGEN ZIE OOK OP TITELWEST-VLAANDEREN
Auteurs:
Smissaert Emile
Een brief van 1604, ten tijde van het Beleg van Oostende
Trefwoorden
BELEG VAN OOSTENDE (1601-1604)GESCHIEDENIS ; SPAANSE PERIODE
Auteurs:
Smissaert Emile
Het bosje vanuit een andere hoek
Trefwoorden
LANDSCHAPSZORGPARKEN ; MARIA-HENDRIKAPARK
Auteurs:
Coopman Jan
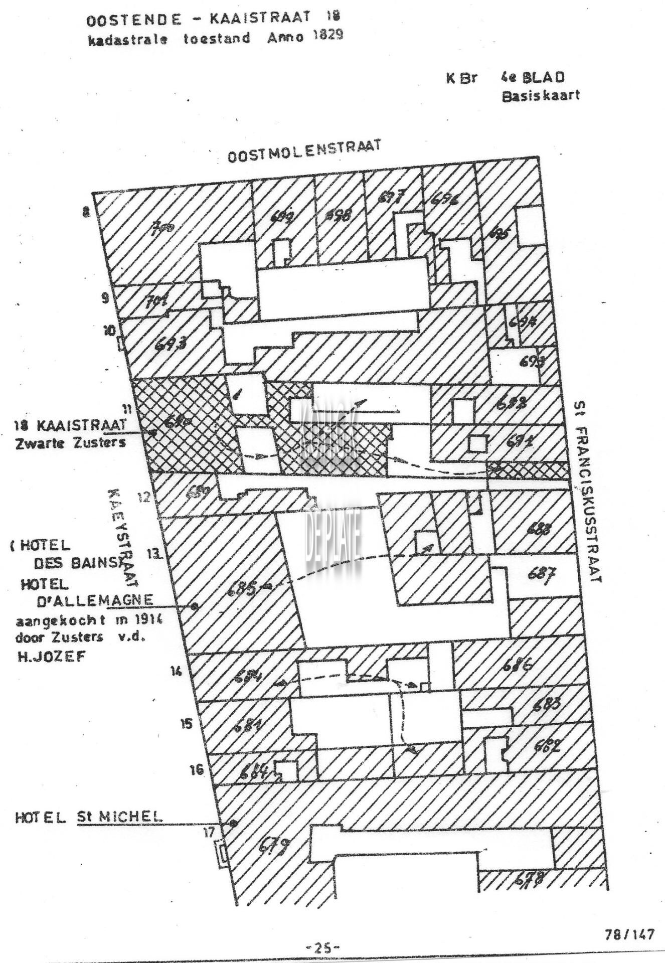
Merkwaardige gebouwen te Oostende : Kaaistraat 18 : in memoriam
Trefwoorden
KAAISTRAATGEBOUWEN
Auteurs:
Farasyn Daniel
Verhandelingen omtrent Oostende, de Oostendenaars en de kust
Trefwoorden
BOEKBESPREKINGEN ZIE OOK OP TITEL
Auteurs:
Smissaert Emile
Boeken : Een studie over het reliëfplan van het 18e-eeuwse Oostende
Trefwoorden
BOEKBESPREKINGEN ZIE OOK OP TITELSTADSPLANNEN
Auteurs:
Smissaert Emile
Mededeling omtrent openbare veiligheid en vreemdelingen in verband met Oostende
Trefwoorden
MAATSCHAPPELIJKE PROBLEMEN ; VREEMDELINGEN
Auteurs:
Smissaert Emile
Boeken : Gustaaf Sorel
Trefwoorden
BOEKBESPREKINGEN ZIE OOK OP TITELSOREL GUSTAAF (1905-1981) (KUNSTSCHILDER)KUNSTSCHILDERS
Auteurs:
Vilain Omer
Bouwmeesters van Oostende-Belle-Epoque : XV - ''Occasionele'' architecten : Leopold Delbove, Hobe, Daniel Francken, E. Serneels, Jules Van Ysendyck, L. De la Censerie, Joseph Naert, De Rycker
Trefwoorden
ARCHITECTENARCHITECTUUR ; BELLE EPOQUENAERT JOSEPH (1838-1910) (ARCHITECT)SERNEELS E. (ARCHITECT)DELBOVE LEOPOLD (ARCHITECT)HOBE GEORGES (1854-1936) (ARCHITECT)VAN YSENDYCK JULES (ARCHITECT)DE RYCKER (ARCHITECT)DELACENSERIE LOUIS (1838-1909) (ARCHITECT)
Auteurs:
Hostyn Norbert
waarom geen visserijmuseum te Oostende ontstond
Trefwoorden
MUSEAGEMEENTEBESTUUR ; CULTUURBELEID
Auteurs:
Debrock Walter
Boeken : Minnebo
Trefwoorden
BOEKBESPREKINGEN ZIE OOK OP TITELMINNEBO HUBERT (KUNSTSCHILDER BEELDHOUWER JUWEELONTWERPER)BEELDHOUWERS
Auteurs:
Vilain Omer
Culinaire folklore : Kalfshersenssaus
Trefwoorden
GERECHTENGASTRONOMIE
Auteurs:
Dreesen Jean Baptist
Boeken : OLV College 100
Trefwoorden
BOEKBESPREKINGEN ZIE OOK OP TITELONZE LIEVE VROUWE COLLEGEVRIJ ONDERWIJS
Auteurs:
Vilain Omer
Boeken : Brugge-Zeehaven
Trefwoorden
NAERT URBAIN (AUTEUR)HAVEN ; ZEEBRUGGEBOEKBESPREKINGEN ZIE OOK OP TITEL
Auteurs:
Anoniem
Merkwaardige gebouwen te Oostende : Kaaistraat 18 : in memoriam
Trefwoorden
KAAISTRAATGEBOUWEN
Auteurs:
Van Iseghem August
Boeken : John Gheeraert
Trefwoorden
BOEKBESPREKINGEN ZIE OOK OP TITELGHEERAERT JOHN (1939-2003) (LERAAR AUTEUR)
Auteurs:
Vilain Omer
Boeken : Wingene
Trefwoorden
BOEKBESPREKINGEN ZIE OOK OP TITELWINGENEDENEWETH MICHAËL (AUTEUR)
Auteurs:
Anoniem
Vergeten Oostendse schilders : V - Euphrosine Beernaert
Trefwoorden
BEERNAERT EUPHROSINE (1831-1901) (KUNSTSCHILDERES)KUNSTSCHILDERS
Auteurs:
Hostyn Norbert
Vergeten Oostendse schilders : IV - De schilders van scheepsportretten in achterglastechniek : aflevering 1
Trefwoorden
MARITIEME KUNSTKUNSTSCHILDERSWIEDEN WENZESLAUS (1769-1814) (KUNSTSCHILDER)ACHTERGLASSCHILDERKUNSTMESEURE FRANÇOIS LAURENT (1772-ca.1860) (KUNSTSCHILDER)NEFORS PETRUS (1790-1876) (KUNSTSCHILDER REDER)
Auteurs:
Hostyn Norbert
Boeken : Seizoenarbeiders
Trefwoorden
BOEKBESPREKINGEN ZIE OOK OP TITELGRENSARBEIDERS
Auteurs:
Anoniem
Ferdinand Vercnocke 70
Trefwoorden
BOEKBESPREKINGEN ZIE OOK OP TITELVERCNOCKE FERDINAND (1906-1989) (ADVOCAAT AUTEUR KUNSTSCHILDER GRAFICUS)
Auteurs:
Smissaert Emile
De laatste Oostendse rokerijen
Trefwoorden
NIJVERHEID ; VISROKERIJENNIJVERHEID ; VISINDUSTRIE
Auteurs:
Dreesen Jean Baptist
Oostende in de Franse Tijd : Kroniek van de voornaamste gebeurtenissen : aflevering 6 (slot)
Trefwoorden
GESCHIEDENIS ; FRANSE TIJD
Auteurs:
Billiet Germain
Maria Hendrikapark (Oostende). - Uit : Nieuwe Stemmen, jrg. 34, nr. 2, december 1977
Trefwoorden
OOSTENDE IN DE POEZIEMARIA-HENDRIKAPARK (GEDICHT)
Auteurs:
Devriendt Roger
Een korte getuigenis over de bloei der Oostendse haven in 1781
Trefwoorden
HAVEN ; GESCHIEDENIS
Auteurs:
Smissaert Emile
Bouwmeesters van Oostende-Belle-Epoque : XIII - Kleinere namen : J.J. Notenboom, Joseph Van der Banck, Alphonse-Marie Clement, M.A. De Doncquers
Trefwoorden
ARCHITECTENARCHITECTUUR ; BELLE EPOQUENOTENBOOM J.J. (ARCHITECT)VAN DER BANCK JOSEPH (1888-1969) (ARCHITECT)CLEMENT ALPHONSE-MARIE (ARCHITECT)DE DONCQUERS AIMÉ (ARCHITECT)
Auteurs:
Hostyn Norbert